Spoznajmo biodiverziteto v naseljih

Sklad: ESRR – Evropski sklad za regionalni razvoj
Trajanje operacije: januar 2019- junij 2021
Partnerji: BSC, poslovno podporni center, d.o.o., Kranj, Občina Bled, Bohinj, Naklo, CTRP
Skupna vrednost operacije (neto upravičeni stroški + DDV): 198.445,81 €, od tega vrednost ESRR 136.028,73 € (80 %)
Opis operacije:
Namen operacije je zagotoviti inovativne pristope za ohranitev biodiverzitete v naseljih preko ureditve prezentacij biodiverzietete v urbanih naseljih v 3 občinah (Bled, Bohinjska Bistrica, Naklo) in preko osveščevalnih delavnic v 7 občinah in priporočil za ohranitev biodiverzitete v urbanih naseljih za prebivalstvo in druge ciljne skupine.
Cilji operacije:
- zagotoviti inovativni pristop za prezentacije biodiverzitete v centru urbanih naselij preko izvedenih pilotnih naložb v 3 urbanih naseljih,
- priporočila (osveščevalne delavnice v 7 občinah).
Aktivnosti operacije:
- vodenje in promocija,
- naložbe v inovativno prezentacijo biodiverzitete v naseljih,
- zagon izgrajenih ureditev prostora s predstavitvijo biodiverzitete v naseljih,
- priporočila za ohranitev biodiverzitete v urbanih naseljih.
Rezultat operacije:
- mreža občin z razvitimi pristopi za prezentacijo biodiverzitete v naseljih.
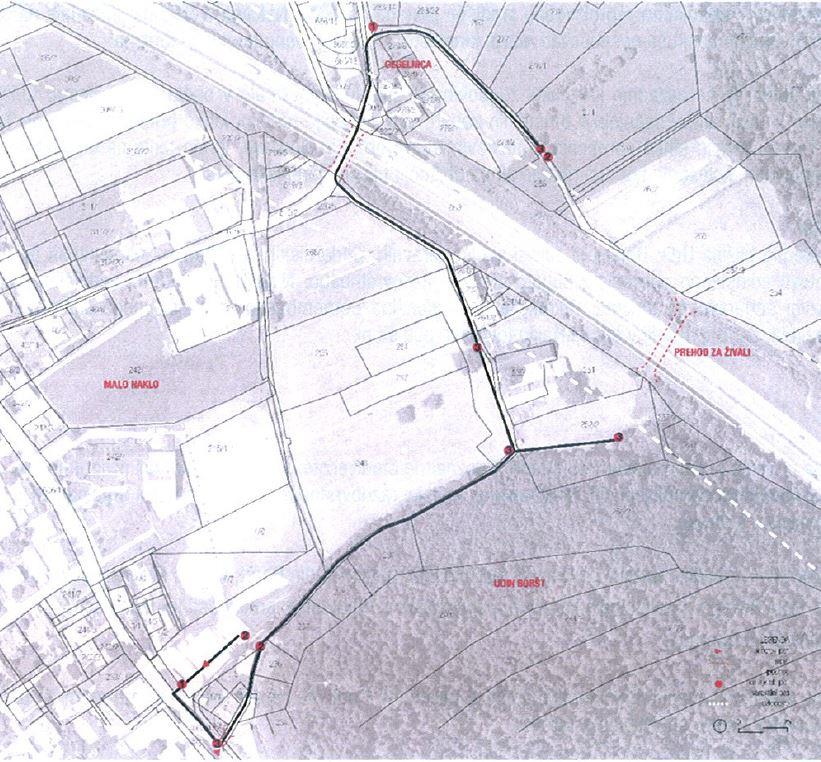
Opis naložbe v Občini Naklo:
Navkljub bližini izjemne naravne vrednote in prizadevnemu delovanju lokalnih društev je trenutno vedenje, kakšno bogastvo in vir življenja predstavlja biotska raznovrstnost, zaradi pomanjkanja informativnih gradiv in primernih aktivnosti za domače prebivalce in tudi za zunanje obiskovalce še precej nepoznano. S predvideno naložbo bo urejena tematska pot Čudovita narava pred našim pragom, obnovljen pa bo tudi most na tej poti.
Vrednost naložbe je 64.026,07 EUR z DDV. Od tega predstavljajo sredstva ESRR 42.546,93 EUR, ostalo bo pokrila Občina Naklo iz svojega proračuna.
Operacijo delno financira Evropska unija iz sredstev Evropskega sklada za regionalni razvoj (ESRR), pristop CLLD- izvajanje lokalnega razvoja, ki ga vodi skupnost, v programskem obdobju 2014-2020
povezava na spletno stran Evropske komisije, namenjene ESRR: https://ec.europa.eu/regional_policy/sl/funding/erdf/
povezava na spletno stran LAS - Gorenjska košarica: www.las-gorenjska kosarica.si/
Podatki o financiranju
Operacijo delno financira Evropska unija iz sredstev Evropskega sklada za regionalni razvoj (ESRR), pristop CLLD- izvajanje lokalnega razvoja, ki ga vodi skupnost, v programskem obdobju 2014-2020





